Commune de Penmarc'h
Catherine Le Perron en association avec Michel GRIGNOU architecte
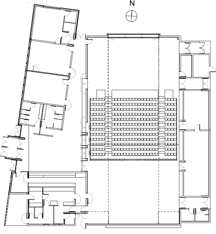
• Salle polyvalente 1 000 places debout,
• Configuration théatre 350 places,
• Salles de réunions + Office + Bar + Loges
Les architectes ont régulièrement des compliments sur le confort et l’acoustique de la salle. Nous en sommes particulièrement fiers !
La grande salle devaient accueillir tout autant de grands spectacles professionnels et associatifs, mais aussi elle devait pouvoir servir les anciens lors notamment du repas de fin d’année de 440 couverts.
Ceci a rapidement orienté nos premières esquisses vers une recherche de lumière naturelle doublement orientée.
De larges baies hautes de part et d’autre de la salle donne une forte identité au bâtiment.
Ses mouvements de toitures étire sa silhouette pour mieux s’inscrire dans le « plat pays » de Penmarc’h.