façade briques pour rappeler les murets de pierre
entrée à contre jour
TOURC'H - 3 EME LIEU
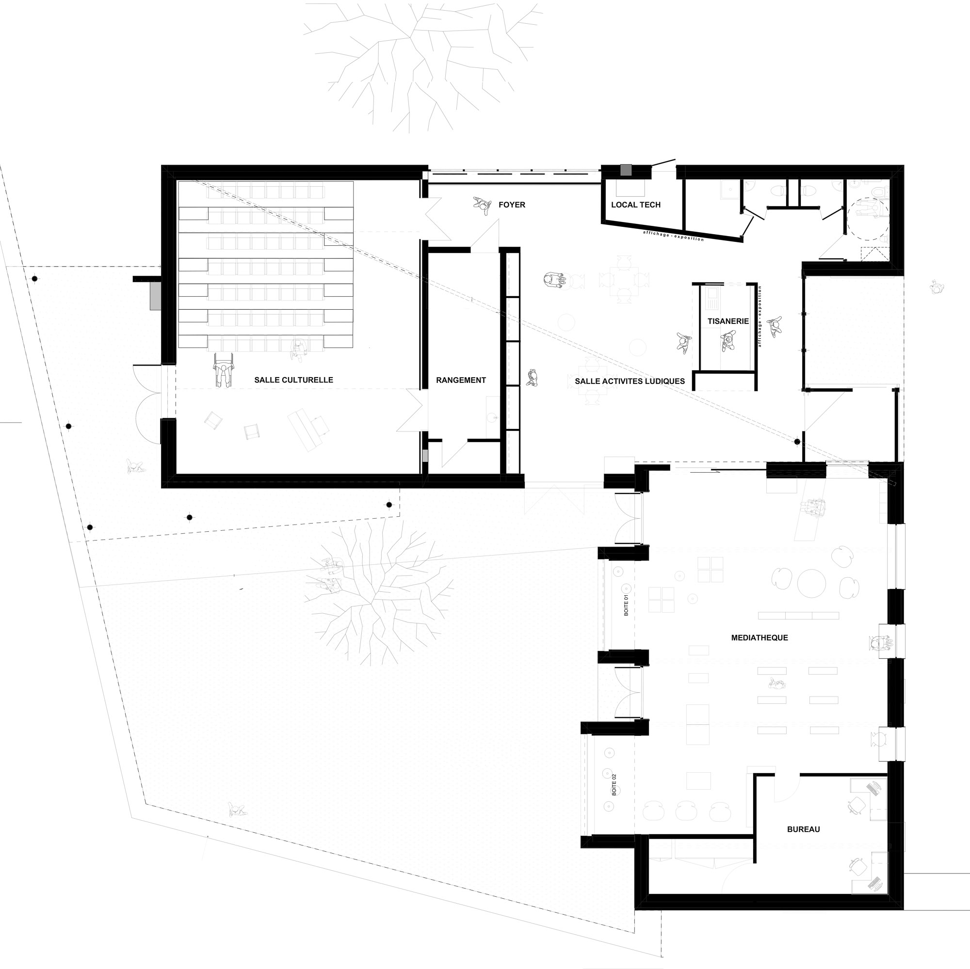
ludothèque
vestiaire ... pour les petits
tisanerie au centre de la ludothèque
médiathèque plan de lecture avec vue
le jardin clos en liaison directe
dans une boite face au jardin clos
assise en façade coin jeu
tisanerie et ludothèque une belle association
croquis
cocktail-concert fin de chantier en pleine été au jardin
covisibilité avec l'église
concert jazz inaugurant la salle culturelle de 80 places - JC Cholet piano-V Mascart sax
chantier toutle volume est utilisé
en cours de chantier un drône veille
la façade depuis le cenrte de la place
la brique cassia noir graphite
duo
TOURCH tiers lieu médiathèque
